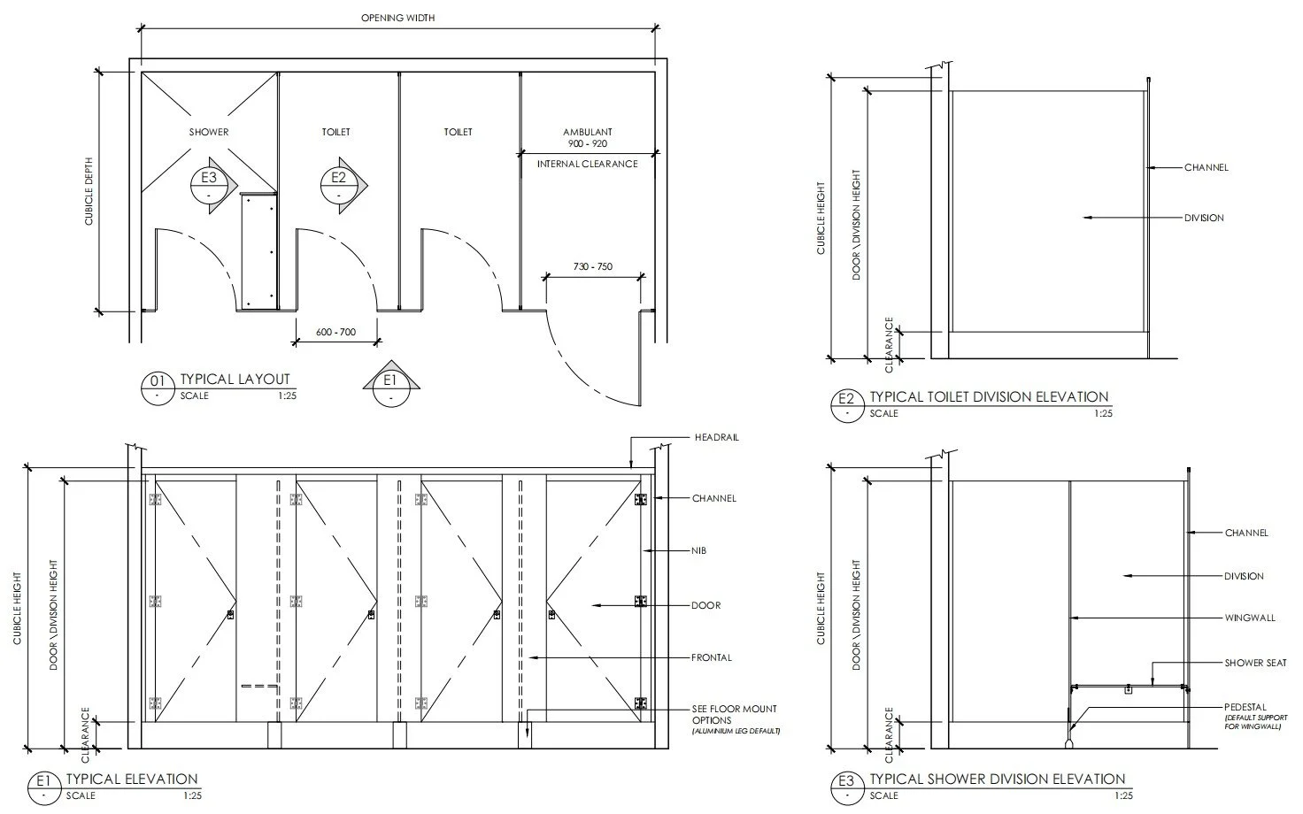
K1 Floor-Mounted Overhead-Braced System
Our most specified system
The K1 is our most commonly specified washroom system for good reason - it has been designed with heavy use in mind. The floor mounted overhead brace system can be adapted to any ceiling height and overhead rails provide additional structural stability. With clean lines and classic styling, the K1 is a popular choice for high traffic areas such as shopping centres, schools and sports facilities.
Available in a wide range of colours and finishes.

